back-button← späť

Advertise is not available anymore, please check our other offers

FOX - PRENÁJOM * skladová hala s kanceláriou * Nitrianska ul. * výborná lokalita

Prenájom, Skladový objekt, Čiastočná rekonštrukcia

Cena: 2.500 za mesiac

757 m2

Údaje nehnuteľnosti

ID nehnuteľnosti: 3864
Druh ponuky: Prenájom
Druh nehnuteľnosti: Skladový objekt
Stav nehnuteľnosti: Čiastočná rekonštrukcia
Úžitková plocha: 757m2

Popis nehnuteľnosti

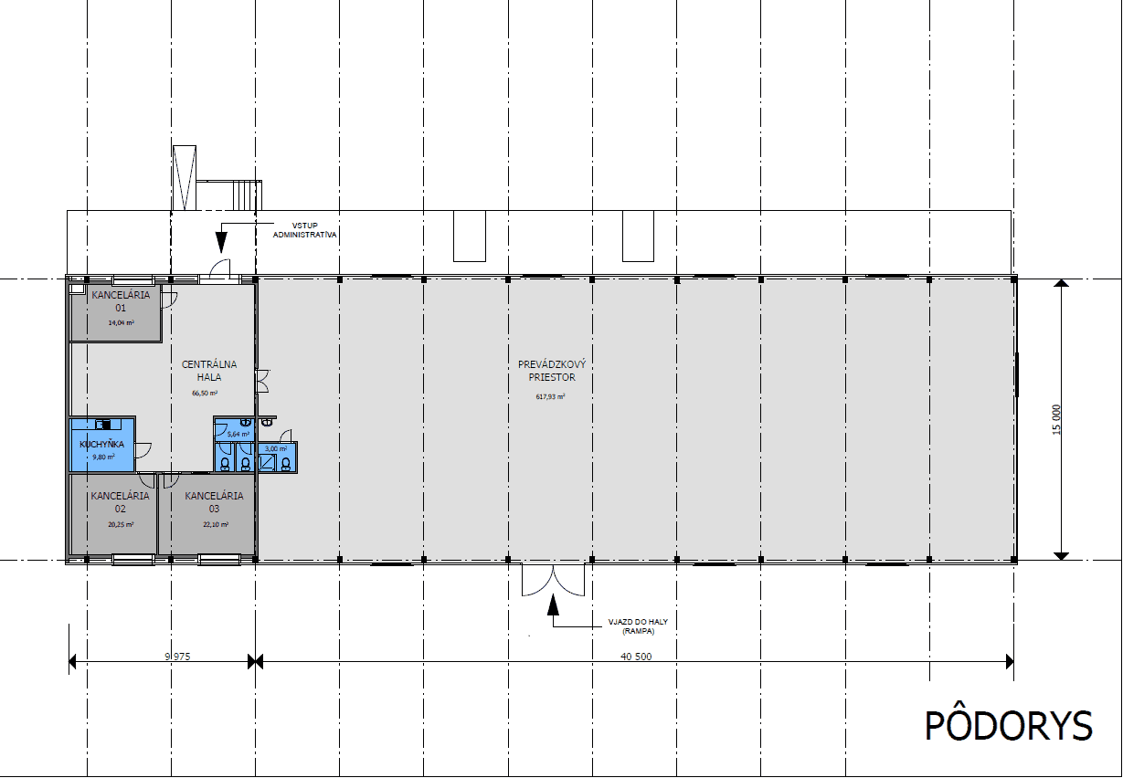
Ponúkame na prenájom skladovú halu s kancelárskou časťou, ktorá sa nachádza na Nitrianskej ulici v Trnave.
Skladová hala má rozlohu 617 m2 a kancelárska časť 140 m2.
Veľkou výhodou je obslužný priestor pre kamióny a lokalita s výborným napojením na diaľnicu D1 a severný obchvat mesta Trnava.

Cena prenájmu celého objeku je 2500€ + DPH + energie.


• FOX reality, s.r.o. je členom NARKS (Národná asociácia realitných kancelárií Slovenska).

Kontakt: Maroš Ruman 0911 911 902

Mapa

Kontakt na predajcu

Zdieľať na Facebooku

Napíšte nám

Kliknutím na tlačidlo ODOSLAŤ súhlasíte so spracovaním Vami zadaných údajov za účelom zodpovedania otázky či podnetu adresátom správy, ktorým je spoločnosť iamalbania.sk. Viac informácií o spracovaní a ochrane osobných údajov nájdete v časti "GDPR - Spracovanie osobných údajov".

Správu sa nepodarilo odoslať
Správa úspešne odoslaná