























- Novostavba
- Ihneď voľný
- Dobrá lokalita
FOX - Moderná novostavba 4-izbového rodinného domu v Smoleniciach *pozemok 524 m2*
Predaj, Rodinný dom, Smolenice, Novostavba
DOHODOU
Údaje nehnuteľnosti
Popis nehnuteľnosti
Ponúkame na predaj novostavbu moderného 4-izbového rodinného domu v novej a vyhľadávanej lokalite „Za Bránou“ v obci Smolenice, situovanej v krásnom prostredí Malých Karpát. Táto atraktívna lokalita ponúka rezidenčné bývanie s dôrazom na súkromie a pokoj – v uzavretom projekte bude postavených len 13 rodinných domov.
Novostavba A7 je dokončená v štádiu komplet. Nábytok, sedačka, TV, plávajúce podlahy, interiérové dvere, zárubne, sanity – kúpeľňa, WC, zariadená kuchynská linka, vonkajšie žalúzie, dokončená terasa a prístupový chodník. Veľkorysá výmera pozemkov ponúka priestor na vytvorenie relax zóny s terasami a bazénom.
Novostavby A8 a A9 budú dokončené a odovzdané v štádiu holodom.
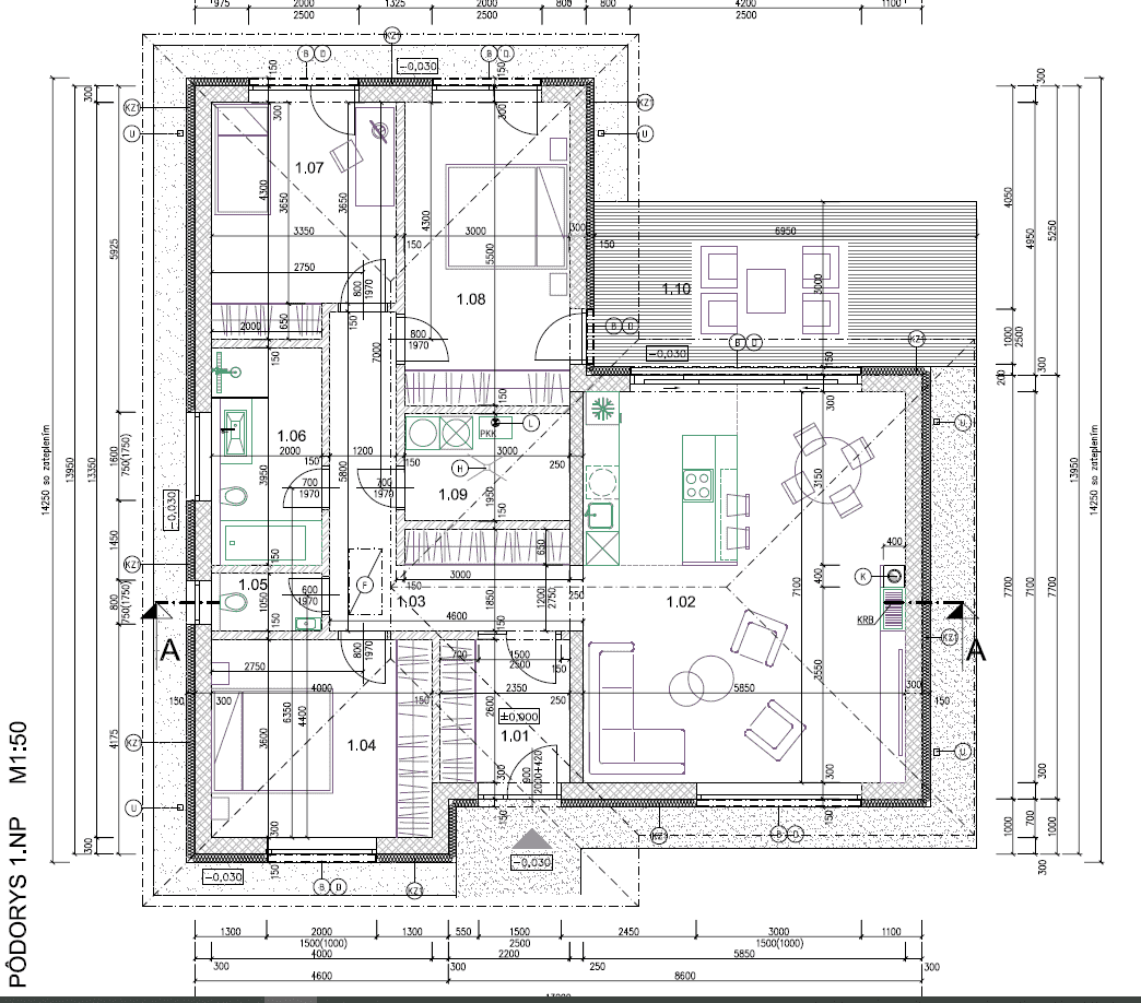
Dispozícia domu:
Zo vstupnej predsiene sa vchádza do centrálnej chodby. Denná časť domu sa nachádza vpravo – otvorený priestor s priestrannou obývacou izbou prepojenou s kuchyňou a jedálňou. Z kuchyne je priamy výstup na terasu a záhradu cez francúzske dvere. Na ľavej strane chodby sa nachádza hlavná spálňa, samostatné WC, technická miestnosť, kúpeľňa s WC a ďalšie dve izby, ktoré môžu slúžiť ako detské izby, pracovňa či hosťovská izba.
Technické vybavenie a štandard:
- zastavaná plocha domu 152 m2,
- celková obytná plocha 121 m2,
- pozemky s výmerami 524,1 m2, 517,4 m2, 518,6 m2,
- napojenie na všetky inžinierske siete (elektrina, plyn, voda, kanalizácia)
- podlahové vykurovanie s tepelným čerpadlom
- príprava na klimatizáciu, krb
- vonkajšie žalúzie
- internet – optické pripojenie
- plastové okná Rehau (trojsklo, 6-komorové)
- hliníkové vstupné dvere
- bezbariérový posuvný výstup na terasu (HST systém)
- fasáda, biela maľovka, zateplenie 18 cm
- tehla TermoBRIK (300 mm)
- podkrovný priestor vhodný na odkladanie
LOKALITA:
Obec Smolenice ponúka kompletnú občiansku vybavenosť – materská a základná škola, potraviny, pošta, banka, lekáreň, zdravotné stredisko, reštaurácie a MHD. V blízkosti sa nachádza Smolenický zámok, rekreačná oblasť Jahodník a známa jaskyňa Driny – ideálne miesto pre milovníkov prírody, turistiky a cykloturistiky.
Výhody:
✅ Novostavba bez ďalších investícií
✅ Kvalitné materiály a moderné technológie
✅ Pokojná lokalita v blízkosti prírody
✅ Ideálne pre rodinu s deťmi
✅ Možnosť vytvorenia relaxačnej zóny v záhrade (terasa, bazén)
• v cene je zahrnuté profesionálne realitné a právne poradenstvo, vrátane vypracovania zmluvnej dokumentácie a návrhov na vklad vlastníckeho práva do katastra nehnuteľností
• ak hypotekárny úver budete riešiť prostredníctvom našej kancelárie, bezplatne Vám vybavíme znalecký posudok
• FOX reality, s.r.o. je členom NARKS (Národná asociácia realitných kancelárií Slovenska).
Kontakt: Maroš Ruman 0911 911 902
Občianská vybavenosť
- Detská škôlka
- Základná škola
- Zdravotné stredisko
- Zastávka autobusu
- Kostol
- Potraviny
- Lekáreň
- Pobočka banky
- Bankomat
- Pošta
- Kaviareň
- Reštaurácia
- Lesopark
Video nehnuteľnosti:
Youtube link: https://www.youtube.com/watch?v=z_PrZv-qvRM
Kontakt na predajcu
